Follow us on social media

LEAD TIME:
Without fitting: 4 – 6 weeks
Including fitting: 8-12 weeks
The standard warranty for Fenbro products is 3 years.
Depending on the additional warranty package selected by the customer, the scope and duration of the warranty may vary.
Entrance doors: Doors should be protected from weather conditions, especially rain and sunlight. Doors must be protected by a roof and, if necessary, also by a side cover. Inward-opening doors must be completely enclosed. Minimum dimensions of the roof or porch: width at least 1 m greater than the width of the door; length from the house/depth at least 1 m.
Prolonged exposure to moisture adversely affects the quality of the door, in particular reducing the quality of the paint coating.
Specifications
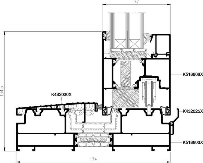
| Depth of the frame [mm] | 174 - 271 |
| Maximum thickness of the glazing unit [mm] | 58.5 |
| Wind resistance | C4 |
| Water resistance | 9A |
| Air permeability | Class 4 |
| Brand | Aluprof |
The MB-77HS system is characterised by large dimensions of sliding system, huge panes and stable construction. The materials and technical solutions used help to achieve a high degree of thermal and acoustic protection. MB-77HS doors can be used to build 2- or 3-rail structures with a low threshold, thanks to which we obtain a very large space after opening the door. Thanks to their properties, MB-77HS doors are perfect for single-family buildings as well as for comfortable apartments or hotels.
See the video from our fitting team:
Opening schemes
Price list
The prices shown in the Price List are for white, double-glazed and/or triple-glazed products and do not include accessories or custom sizes and dimensions. Additionally, each colour change affects the final price of the product in the following way:
The Customer pays 3-5% more for a one-sided coating or two-sided coating.
The Customer pays 10-20% more for a one-sided veneer and 25-35% more for a two-sided veneer.
The Customer pays 5-10% more for a one-sided veneer and 10-15% more for a two-sided veneer.
One active-leaf door
| Size: | 4000 x 2100 |
|
Double-glazed Price from: |
€ 5051 net |
|
Triple-glazed Price from: |
€ 6399 net |
Recently viewed products
Aluminium Windows and Doors MB-79N | Aluminium Sliding Doors MB-77HS Lift & Slide System | Meath | #533
Aluminium Windows MaxLight Modern | Aluminium Sliding Doors MB-77HS | West Midlands | #507
uPVC Windows and Doors Salamander BluEvolution 82 | Aluminium Windows MB-79N | Aluminium Sliding Doors MB-77HS | Wikęd Steel Doors model 42 Product line: OPTIMUM TERMO | Kildare | #469
Aluminium Windows Aluprof MB-79N | Sliding Doors Aluprof MB-77HS | Cork | #444
Aluminium Windows MB-79N | Aluminium Sliding Doors MB-77HS | Cork | #414
Aluminium Windows and Back Doors SlimLine 38 | Aluminium Front Doors Masterline 8 Pivot | Aluminium Sliding Doors MB-77HS | Dublin | #365
Aluminium Windows and Back Doors SlimLine 38 | Aluminium Front Doors MASTER LINE 8 Model 108 | Aluminium Sliding Doors MB-77HS | Dublin | #339
uPVC Windows and Back Door IDEAL 8000 | Aluminium Window MB-86N SI | Wikęd Steel Door model 26 Product line: OPTIMUM TERMO | Aluminium Sliding Doors MB-77HS | uPVC Sliding Doors smart-slide | Cavan | #280
uPVC Windows and Back Door IDEAL 8000 | Aluminium Window MB-86N SI | Wikęd Steel Door model 26b Product line: OPTIMUM TERMO | Aluminium Sliding Doors MB-77HS | Co. Cork | #188
Aluminium Sliding Doors MB-77HS | Aluminium Doors Panorama Fold line | Aluminium Window Superial | Dublin | #165
Aluminium Windows MB-86 SI | Aluminium Sliding Doors MB-77HS | Dublin | #161
Aluminium Windows MB-79N E | Wikęd Steel Door and Back Door model GD01c Product line: OPTIMUM TERMO | Aluminium Sliding Doors MB-77HS | Co. Cork | #160
Aluminium Window and door MB-86 SI | Aluminium Window MB-79N SI | Aluminium Sliding Doors MB-77HS | County Tipperary | #136
Aluminium windows Aluprof MB-86 SI | Sliding doors MB-77HS | Aluprof Door DESPIRO DP06 | Sectional garage door Infiniti | Co. Mayo | #62
Aluminium windows Aluprof MB-86 SI | Sliding doors MB-77HS | Aluprof Door MB-86 SI-DESPIRO | Sectional garage door Infiniti | Castlebar | #55
Aluminium windows MB-60 | Aluminium sliding system: MB-77HS | Dublin | #35
Aluminium sliding system MB-77HS | Dublin | #23
Similar products
Asking for a quote
You press the ‘Get a free quote’ button and submit your inquiry with chosen joinery parameters.Receiving the quote
Our sales team returns to you with the purchase quote on joinery, delivery costs and lead time.Verification
Our expert goes through all the information included in the offer together with you.Agreement & Payment
It is the stage where we confirm the contract and you make the payment.Production
It’s the time it takes to produce your ordered windows and doors (or any products from our offer).Delivery
This is the shipment period for your ordered products.Installation
If you're interested in installation, we can connect you with independent fitting teams familiar with Fenbro products.First of all, you should send us your enquiry where you specify your chosen joinery parameters, dimensions and qualities. In order to prepare a quote for you, we need the following details:
We are selling complex products, tailored services and our customers often require a special solution. That's why each of our products is personalised and we do not have the standard price list. Every product is quoted according to individual customer needs. Please send all enquiries about our offer to the following e-mail address: [email protected]
At the moment, the estimated lead time for specific product categories is as follows: